AS Tile Roof Hook Solar Mounting System

厦门元聚荣能源科技有限公司
类型
斜面屋顶
风荷载
216 km/h
产品质量保证
15 年
地区
中国大陆 中国大陆
组件边框
有边框,无边框
雪荷载
1.6 kN/m²
组件排列方向
纵向,横向
轨道材质
零部件材质
铝,不锈钢
价 格:
起价
¥0.142 / Wp*
*
每件价格
每件价格
最低订购量 10-49 50-999 1000+
AS Tile Roof Hook Kit Solar Mounting System ¥630 ¥599 ¥568
组件数量 10
联系生产商
注意: 您的询盘将直接发送至厦门元聚荣能源科技有限公司
  • Simple and strong design

  • Compatible with most framed and frameless solar panels

  • Pre-assembled before shipment, saving on-site installation time and labour costs

产品特点

产品型号
AS Tile Roof Hook Kit Solar Mounting System
产品质量保证 15 年
 
类型 斜面屋顶
支架系统排列方式 按行排
组件边框 有边框,无边框
组件排列方向 纵向,横向
屋面类型 瓦片
屋顶倾斜角度
5-45 °
风荷载
216 km/h
雪荷载
1.6 kN/m2
 
轨道材质
零部件材质 铝,不锈钢
 
下载公司产品详情

AS Tile Roof Hook Kit Solar Mounting System

AS Tile Roof Hook Kit Solar Mounting System is designed for solar installation on tile roofs. The system delivers firm and stable fixation between tile roofs and solar panels.

Advantages

Thanks to the wide range and modular structure of our pitched roof racking system, we can build a solar power plant on almost every sloping roof, using all the PV modules currently on the market. Angels Solar mounting solutions are extremely durable, have high load capacity, are fast to install, and therefore cost-effective.

Design

It is necessary for us to design and quote

1. Solar panel info. Dinesion L_____ mm W_____ mm T_____ mm ; Power _____ watt/panel Qty. _____ pcs

2. _____ m/s wind speed and _____ KN/m2 snow load

3. Tilt angle _____ deg. (Or E °/ W °)

4. Array layout : _____ Nos. in a row × _____ Nos. in a column

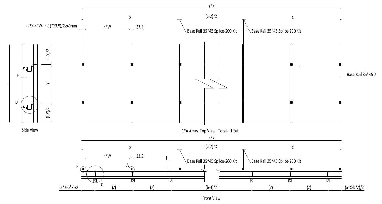
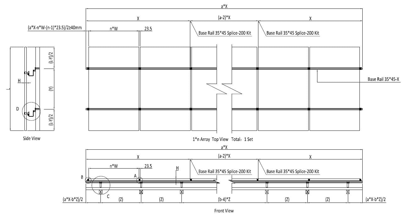
Specification

Product

AS Tile Roof Hook Kit Solar Mounting System

Application

Pitched Roof

Roof Type

Tile Roof

Tilt Angle

0°to 45°

Wind Speed

60 m/s

Snow Load

1.4 KN/m²

Solar Panel

Framed and Frameless

Panel Layout

Portrait or Landscape

Design Standard

AS / NZS 1170 ,DIN 1055 ,JIS C8955 :2017 ,International Building Code IBC 2009

Material

Structure: Al6005-T5(Anodized) Components: SUS304 & Al6005-T5(Anodized)

About Angels Solar

Xiamen Angels Solar Energy Co., Ltd specializes in designing, manufacturing, and promoting solar mounting systems.

With our mother company having over 10 years of experience in ODM and manufacturing galvanized steel and aluminum structures, our expertise in metallic structures and raw materials supply chain management, as well as quality inspection and control, makes Angels Solar competitive in delivering cost-effective and solid solar mounting solutions and products.

With a dedicated and experienced R&D engineering team and an efficient supply chain, we have launched a series of solar mounting systems covering residential, commercial, and utility applications. We are determined to become an all-round solar mounting solution and product provider. 'Quality, Value, Service' is the principle we pursue. We deliver the value of mounting structures in solar projects through innovation in product design and satisfy our customers by providing professional service throughout the entire process of project planning, design, delivery, and commissioning.

Together with our customers, suppliers, and fellow companies, we look forward to building a society of sustainable development and a greener future.

公司图标

厦门元聚荣能源科技有限公司

Click to show company phone
www.angelssolar-xm.com
中国大陆
福建省厦门市集美区杏林湾路474号2号楼1603室
员工数: 100
注意: 您的询盘将直接发送至厦门元聚荣能源科技有限公司

有用联系人

公司描述

厦门元聚荣能源科技有限公司是一家专业从事太阳能安装系统的设计、制造和推广的企业。

随着母公司拥有超过14年的ODM和生产镀锌钢和铝结构的经验,厦门元聚荣从2019年开始设计和提供太阳能安装系统。

在金属结构、原材料供应链管理以及质量检验和控制方面的经验,使厦门元聚荣在提供具有成本效益和可靠性的太阳能安装解决方案和产品方面具有竞争力。

我们拥有专业、经验丰富的研发工程团队和高效的供应链,推出了涵盖住宅、商用和公用事业应用的系列太阳能安装系统,立志成为全方位的太阳能安装解决方案和产品供应商。

“品质价值服务”是我们追求的原则。我们通过创新的产品设计,在太阳能项目中传递安装结构的价值,我们通过在项目规划、设计、交付和调试的整个过程中提供专业的服务,以满足我们的客户。

我们与客户、供应商和其他公司一起,期待建设一个可持续发展的社会和一个更绿色的未来。

产品视频
产品

About Angels Solar

Main Products

Certificates

来自厦门元聚荣能源科技有限公司的其他29个系列产品‎

  • AS Mini-rail Kit Trapezoidal Metal Roof
    ¥0.139 / Wp *
    AS Mini-rail ...
    斜面屋顶
  • AS Triangle Solar Ballast Flat Roof
    ¥0.276 / Wp *
    AS Triangle S...
    平面屋顶
  • AS Agricultural Solar Farm Mounting System
    ¥0.272 / Wp *
    AS Agricultur...
    农业型
  • AS Solar Car Parking Carport Mounting System
    ¥0.163 / Wp *
    AS Solar Car ...
    车棚型
  • AS Solar Mount Ground Racking Plant AL6005-T5
    ¥0.326 / Wp *
    AS Solar Moun...
    地面型
  • AS Mini Rail U Shape Metal Roof Mounting
    ¥0.139 / Wp *
    AS Mini Rail ...
    斜面屋顶
  • AS Solar Tripod Concrete Roof Solar Mounting System
    ¥0.345 / Wp *
    AS Solar Trip...
    平面屋顶
  • AS Solar Ballasted Flat Roof Mounting System
    ¥0.217 / Wp *
    AS Solar Ball...
    平面屋顶
  • AS Alumimum Solar Ground Mounting System
    ¥0.163 / Wp *
    AS Alumimum S...
    地面型
  • AS MAC Steel Solar Ground Mounting System
    ¥0.217 / Wp *
    AS MAC Steel ...
    地面型
  • AS Single Pole Steel Solar Ground Mounting Structure
    ¥0.217 / Wp *
    AS Single Pol...
    地面型
  • AS Solar Carport Mounting System
    ¥0.112 / Wp *
    AS Solar Carp...
    车棚型
  • AS Fixed Angle Flat Roof Tilt Mount
    ¥0.163 / Wp *
    AS Fixed Angl...
    斜面屋顶
  • AS Solar Adjustable Standing Seam Roof PV Racking
    ¥0.217 / Wp *
    AS Solar Adju...
    斜面屋顶
  • AS Short Rail U Shape Mini Rails Roof Mounting
    ¥0.139 / Wp *
    AS Short Rail...
    斜面屋顶
  • AS  L Feet Kit Metal Roof Solar Mounting System
    ¥0.139 / Wp *
    AS L Feet Ki...
    斜面屋顶
  • AS Hanger Bolt Roof Mounting System
    ¥0.142 / Wp *
    AS Hanger Bol...
    斜面屋顶
  • AS Farm Solar Plant Ground Mounting Park System
    ¥0.326 / Wp *
    AS Farm Solar...
    农业型
  • AS Steel Solar Ground Mounting System
    ¥0.217 / Wp *
    AS Steel Sola...
    地面型
  • AS Solar Plant Ground PV Mounting System Structures
    ¥0.221 / Wp *
    AS Solar Plan...
    地面型
  • AS Solar Farm Mount Supports Ground PV System
    ¥0.326 / Wp *
    AS Solar Farm...
    地面型
  • AS Ground Mounting Adjustable System
    ¥0.163 / Wp *
    AS Ground Mou...
    地面型
  • AS Galvanized Steel Hot Dip Ground Mounting System
    ¥0.217 / Wp *
    AS Galvanized...
    地面型
  • AS Vertical Bifacial Solar Fence Plant
    ¥0.217 / Wp *
    AS Vertical B...
    地面型
  • AS Steel Carport Parking Mounting System
    ¥0.136 / Wp *
    AS Steel Carp...
    车棚型
  • AS Flat Roof Ballast Structure
    ¥0.136 / Wp *
    AS Flat Roof ...
    平面屋顶
  • AS Flat Roof Triangle Ballasted Support
    ¥0.207 / Wp *
    AS Flat Roof ...
    平面屋顶
  • AS Steel Solar Carport Double Mounting
    ¥0.334 / Wp *
    AS Steel Sola...
    车棚型
  • AS Kliplok Metal Roof Solar Mounting System
    ¥0.0974 / Wp *
    AS Kliplok Me...
    斜面屋顶